Sleeve hitch information wanted please.

Stuff about your Case, Colt, or Ingersoll tractor
User avatar
Timj United States of America
Posts: 1457
Joined: Thu Mar 04, 2021 9:57 pm
Location: Central WI
Has thanked: 5376 times
Been thanked: 5113 times

Re: Sleeve hitch information wanted please.

Post by Timj »

So, are you going to build one? :writing: :smash: : Or do you think you can find one, I'm guessing there is not alot of Case in your area. :letmesee:
:creeper: no more mow it's time to blow :446cart:
User avatar
propane1 Canada
Posts: 2855
Joined: Thu Dec 23, 2021 11:32 am
Location: PEI, Canada
Has thanked: 6798 times
Been thanked: 10918 times

Re: Sleeve hitch information wanted please.

Post by propane1 »

Well the first thing will be to put ads out looking for one Tim. And your right, I doubt I’ll find one. But, someone a short while ago was looking for a mower deck for a Case. So slimly , there could be one here some where, but to find it !
Then I’ll check in the maritimes for one. I know a fella in Cape Breton , NS who is in to Case tractors, he may have one or know of one. So will see what happens.
May make one too.


Noel
User avatar
Gordy United States of America
Posts: 653
Joined: Sat Mar 06, 2021 1:24 pm
Location: MapleLake,MN
Has thanked: 2343 times
Been thanked: 2137 times

Re: Sleeve hitch information wanted please.

Post by Gordy »

I looked for the plans here could not find them, and on the other site the link to the pdf is missing :headbash: But as I recall the sleeve hitch for the 4xx is 2-2.25 inches longer than the one for the 2xx's.

:cheers:
Gordy
Eugen Canada
Posts: 5379
Joined: Wed Mar 03, 2021 2:52 pm
Location: Port Mcnicoll, Ontario
Has thanked: 14075 times
Been thanked: 17440 times
Contact:

Re: Sleeve hitch information wanted please.

Post by Eugen »

Here's the link to the attachments fit chart

http://manuals.ccigt.com/More/cciAttachmentChart.pdf

@Gordy what"s the name of the file with the plans?
Eugen Canada
Posts: 5379
Joined: Wed Mar 03, 2021 2:52 pm
Location: Port Mcnicoll, Ontario
Has thanked: 14075 times
Been thanked: 17440 times
Contact:

Re: Sleeve hitch information wanted please.

Post by Eugen »

27F3A6FB-C724-4092-A950-65A343235393.jpeg

027FDAD1-C1AE-451C-A52C-CA55EB20A6D2.png
User avatar
Gordy United States of America
Posts: 653
Joined: Sat Mar 06, 2021 1:24 pm
Location: MapleLake,MN
Has thanked: 2343 times
Been thanked: 2137 times

Re: Sleeve hitch information wanted please.

Post by Gordy »

OOP's 4 inch difference, so much for my memory :headbash: Thanks for finding the plans Eugen :thumbsup:

:cheers:
Gordy
myerslawnandgarden United States of America
Posts: 374
Joined: Sun Mar 07, 2021 12:17 pm
Location: Hinckley, IL
Has thanked: 181 times
Been thanked: 1961 times

Re: Sleeve hitch information wanted please.

Post by myerslawnandgarden »

Timj wrote: Mon Mar 07, 2022 7:18 pm
Propane57 wrote: Mon Mar 07, 2022 7:00 pm
Timj wrote: Mon Mar 07, 2022 6:24 pm The 200s use different than the 400s. I think a H, J, or K24 is what you should be looking for.

I also think there is plans to build your own.

I don't think the implements will matter, they were made to fit a wide variety of brands of tractors.
Thanks Tim.

Noel
According to this, last page, the k24 is the one for you.
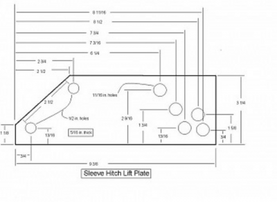
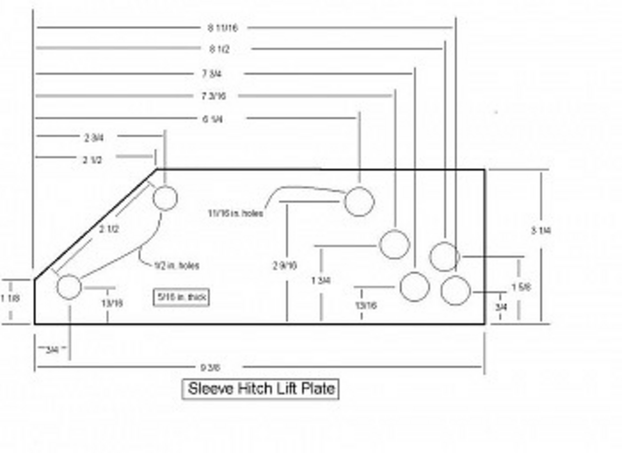
Sleeve Hitch H, J, K 22 & 24 Manual 9-99726_watermarked.pdf

The what fits chart wasn't totally clear. Maybe Bob @myerslawnandgarden will know for sure or what the real difference is, or if a H or J24 would work.
Late to the party but a K24 is what would be needed for a long wheelbase 400 series tractor. That said, the only difference between the J24 and K24 is a 2" longer lift arm which either can be purchased new or the old one could be lengthened.

Bob
Seabee United States of America
Posts: 139
Joined: Mon Aug 23, 2021 8:53 am
Location: Coldwater, MI
Has thanked: 168 times
Been thanked: 541 times

Re: Sleeve hitch information wanted please.

Post by Seabee »

For what it is worth: I am in possession of a NOS sleeve hitch for the 200 or 3000 series tractors. It is the current reinforced sleeve hitch not the original version. It is very nice condition. Probably wouldn't be willing to ship to Canada, but if somebody wanted to meet me at Port Huron for coffee that might be arranged for fuel. I am 3 hours out from there. Or could meet in Detroit area 2 hours, but more hassle to exchange there.

And of course this would be a part for your "Tractor" !

If someone wants it, I can be flexible.

I have had it for a couple of years and I don't have anything but 400 or 4000 series tractors.

Bill Moyer
Coldwater, MI @ the bottom of the state along Interstate 69
Bill Moyer
Post Reply